目次
・<4/28予定>テックライフセレクト豊田広路店
企業HP
愛知県豊田市広路町二丁目3番 外17 筆
敷地面積 8,170 ㎡
建築面 積 5,466 ㎡
延面積 18,321 ㎡
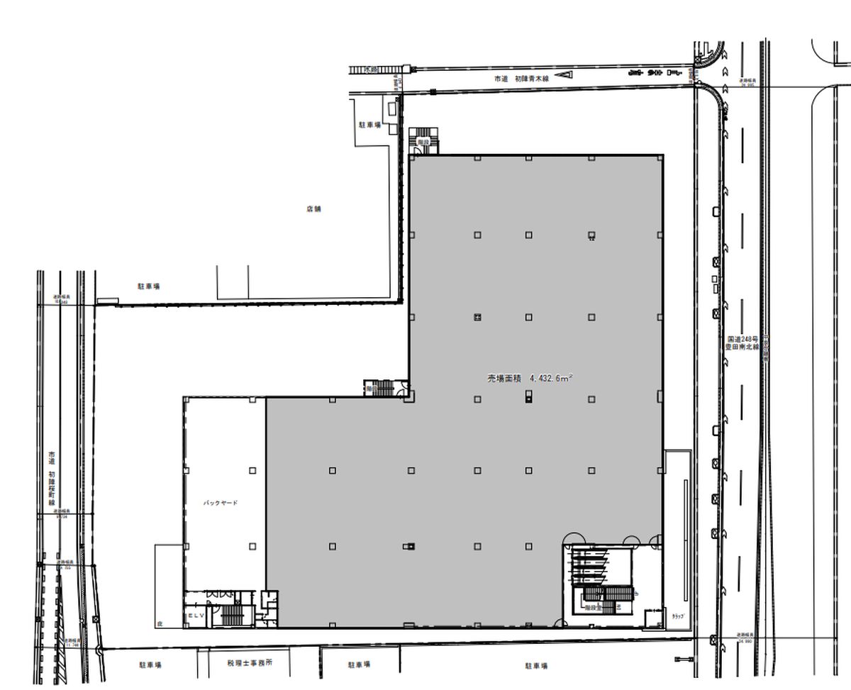
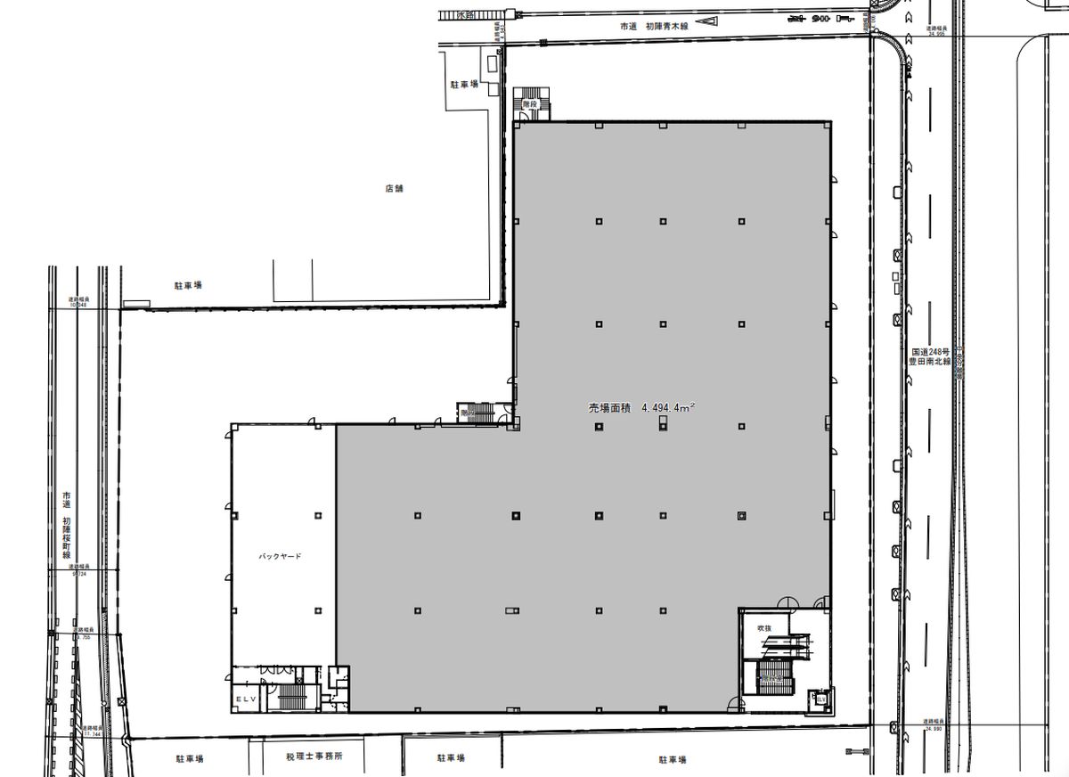
店舗面積 8,927 ㎡
駐車場 400台
建物構造 鉄筋コンクリート造4 階
大店立地届出時開店予定2026/04/28予定
記録日2025/05/28(紹介記事9/19)
▢出店計画地

□1階

□2階

□3階

※大店立地届出時の開店予定日は実際の開店日ではありません。大店立地届出日を基準日としてその翌日から8ケ月後を開店予定日として届出しているのがその理由(8ケ月間規制,例外あり)。
・【参考事例】
①6/1届出(起算日)→8ケ月後の2/2が応当日で2/1が満了日
②6/30届出(起算日)→8ケ月後の2/30が応当日だが、無いため2/28が満了日
また、8ケ月経過しなくとも意見を有しないと県からの通知が届いた時点で手続きは完了し出店が可能となる
◇出店地付近の地図
新店・改装情報記事地域別一覧(画像クリック)↓












